Добро пожаловать на http://vipplan.ru

Випплан Новошахтинск - это тысячи проектов домов в нашем каталоге!

Вы всегда сможете найти для себя проект дома вашей мечты! Даже если этого не случилось, мы готовы в любую минуту предложить проект индивидуального дома.

Забыли пароль?
Вы еще не регистрировались?

Перейдите по ссылке ниже на страницу регистрации.

Регистрация...

Внимание!!!

В проектную документацию могут быть внесены изменения любой сложности, в соответствии в Вашими пожеланиями!

Полезные статьи

Сборные фундаменты

В наше время все большую популярность при строительстве дома приобретают сборные бетонные и железобетонные блоки. Их использование значительно сокращает время работ и снижает их трудоемкость....

Выбор сайдинга

Прежде чем купить сайдинг, нужно определиться зачем он нужен: для защиты фасада от непогоды, для придания привлекательности внешнему виду дома или для утепления дома.Что же из себя представляет сайдинг? Сайдинг – это материал для облицовки фасада из компаунда. В данной статье мы поможем Вам определиться выбором сайдинга для отделки фасада дома...

Проекты домов и коттеджей > Каталог проектов домов > Проект одноэтажного дома из газобетона Vg1075

Проект одноэтажного дома из газобетона Vg1075

Проект одноэтажного дома из газобетона
Зарегистрируйтесь

Проект № Vg1075


Техническое описание
Общая площадь: 298.71 м2
Жилая площадь: 123.27 м2
Высота здания: 9.77 м
Размеры дома: 16.58м×12.08м
Кол-во комнат: 5
Цокольный этаж: есть
Гараж: нет
Мансарда: есть

Kонструкция
Фундамент: Блоки ФБС
Перекрытия: Сборные ж/б плиты
Материал стен: Газобетон

Архитектурный раздел
Конструктивный раздел
Инженерный раздел
АР+КР - 72 000 (Со скидкой 20%)
АР+КР+ИР - 176 650 (Со скидкой 50%)
Проект индивидуального одноэтажного жилого дома с подвалом и мансардой с размерами здания 16,58 x 12,08 м. Наружная отделка здания – облицовочный кирпич. Фундамент – блоки ФБС (ленточный под несущими стенами). Наружные стены – газобетонный блок, экструдированный пенополистирол, воздушный зазор, облицовочный кирпич. Внутренние стены – газобетонный блок. Перегородки – газобетонный блок. Пол подвала – пол по грунту. Межэтажные перекрытия – сборные ж/б плиты перекрытия. Крыша – сложная. Кровля – металлочерепица. Окна — металлопластиковые. Лестницы - деревянные
Генплан застройки участка / Паспорт проекта 7000 руб / 10000 руб
Инженерный раздел (полный) 104650 руб (149500 руб)
Смета на строительство 74750 руб
Теплотехнический расчет материалов стен Бесплатно
Стоимость проекта со незначительнми изменениями 82500 руб
Стоимость проекта со средними изменениями* 105000 руб
Стоимость проекта со значительными изменениями** 110900 руб

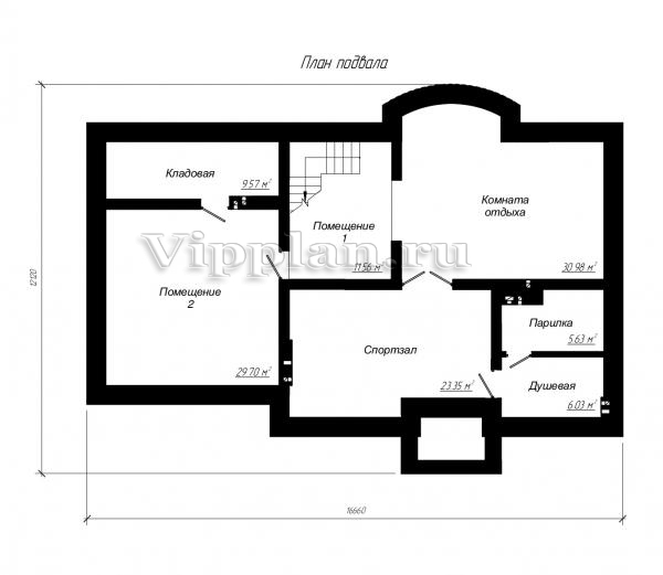
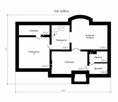
План цокольного этажа


Помещение 1 — 11,56 м2
Помещение 2 — 29,70 м2
Кладовая — 9,57 м2
Комната отдыха — 30,98 м2
Спортзал — 23,35 м2
Парилка — 5,63 м2
Душевая — 6,03 м2

План первого этажа


Тамбур — 3,42 м2
Холл - 9,95 м2
Бойлерная - 9,60 м2
С/у - 4,40 м2
Гараж - 29,70 м2
Гостиная - 37,69 м2
Кухня - 12,14 м2
Гардероб - 4,07 м2

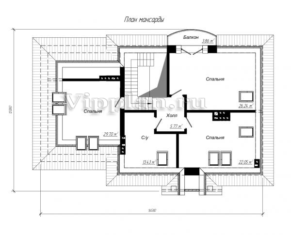
План мансардного этажа


Холл — 5,77 м2
Спальня - 18,37 м2
Спальня - 15,44 м2
Спальня - 20,79 м2
С/у - 9,40 м2
Балкон - 1,16 м2
Проект одноэтажного дома из газобетона Проект одноэтажного дома из газобетона Проект одноэтажного дома из газобетона Проект одноэтажного дома из газобетона

Модификации проектов

Внесение изменений и привязка к участку строительства

В любой из проектов от компании VIPplan - Новошахтинск по вашему желанию могут быть внесены изменения в материалы стен, материалы наружной отделки дома, а также будет произведена адаптация проекта под конкретный регион строительства (с учетом грунтов региона, геологических особенностей вашего участка и местных климатических условий) - БЕСПЛАТНО !!! (кроме проектов со скидкой и проектов наших партнеров).

Любой из проектов, размещенных на сайте novoshahtinsk.vipplan.ru мы можем выполнить из требуемых вам строительных материалов: ячеистый бетон (газобетон, пеноблок), керамоблок, кирпич, шлакоблок, бетонный блок, дерево (брус, клееный брус), каркасная технология (деревянный каркас, металлокаркас (ЛСТК)).

Фасад дома и его наружную отделку так же возможно выполнить с применением различных облицовочных материалов: структурной штукатурки, (с утеплителем и без), сайдингом (пластиковый или металлосайдинг), фиброплитами, кирпича.

 
6 Избранные
проекты

Доставка проектов по России: Москва (Московская область), Санкт-Петербург (Ленинградская область), Краснодар, Ростов-на-Дону, Ставрополь, Сочи, Волгоград, Новосибирск, Белгород, Брянск, Воронеж, Саратов, Хабаровск, Астрахань, Нальчик, Владикавказ, Екатеринбург, Тюмень, Самара, Нижний Новгород, Казань, Пермь, Уфа, Челябинск, Красноярск, Ханты-Мансийск, Иркутск, Курган, Оренбург, Омск, Томск, Барнаул, Новокузнецк, Кемерово, Абакан, Чита, Якутск, Южно-Сахалинск, Петропавловск-Камчатский и страны ближнего зарубежья: Белоруссия, Украина, Казахстан