Добро пожаловать на http://vipplan.ru

Випплан Новошахтинск - это тысячи проектов домов в нашем каталоге!

Вы всегда сможете найти для себя проект дома вашей мечты! Даже если этого не случилось, мы готовы в любую минуту предложить проект индивидуального дома.

Забыли пароль?
Вы еще не регистрировались?

Перейдите по ссылке ниже на страницу регистрации.

Регистрация...

Внимание!!!

В проектную документацию могут быть внесены изменения любой сложности, в соответствии в Вашими пожеланиями!

Полезные статьи

Фундамент под гараж

Обычно фундаменты под гараж делаются из бетонного раствора и заливаются, как монолит. Гаражные фундаменты так же можно укладывать из бетона с применением бутового камня. Такие фундаменты тоже считаются монолитными. В этом случае происходит экономия бетона....

Вентиляция в подвале дома

Без подвала или цокольного этажа в частном доме, в наше время, не обойтись. Это полезное для дома помещение должно быть хорошо вентилируемым. В доме с подвалом должна быть хорошая циркуляция воздуха, для сохранения находящихся в нем продуктов. Отсутствие вентиляции  может привести к образованию плесени и сырости не только в подвале, но и во всем доме....

Проекты домов и коттеджей > Каталог проектов домов > Проект двухэтажного жилого дома с гаражом «А» Vg1488

Проект двухэтажного жилого дома с гаражом «А» Vg1488

Проект двухэтажного жилого дома с гаражом «А»
Зарегистрируйтесь

Проект № Vg1488


Техническое описание
Общая площадь: 188.33 м2
Высота здания: 9.59 м
Размеры дома: 13.14м×9.84м
Цокольный этаж: нет
Гараж: нет
Мансарда: нет

Kонструкция
Фундамент: Щелевой, монолитный ж/б
Перекрытия: Сборные (плиты перекрытий) ж/б
Материал стен: Газобетон

Архитектурный раздел
Конструктивный раздел
АР+КР - 60 000 (Со скидкой 20%)
Проект индивидуального одноквартирного двухэтажного жилого дома с размерами здания 13,14x 9,84 м. Наружная отделка здания - комбинированная: Фасадная штукатурка, камень, деревянные панели. Фундамент - "стена в грунте" (щелевой), монолитный ж/б . Наружные стены дома: газобетонные блоки, фасадная штукатурка/камень/ деревянные панели. Внутренние стены и перегородки -газобетонные блоки. Перемычки - монолитные и сварные из профиля проката. Перекрытие над первым этажом - сборное (плиты перекрытий) ж/б. Чердачное перекрытие - по деревянным балкам с использованием теплошумоизоляционных материалов типа "URSA" в межбалочном пространстве. Пол первого этажа - пол по грунту. Крыша - четырехскатная. Материал кровли - гибкая черепица. Окна - металлопластиковые, выполненные по индивидуальному заказу. Лестница - по металлическому каркасу, выполняется по индивидуальному заказу.
Генплан застройки участка / Паспорт проекта 7000 руб / 10000 руб
Инженерный раздел (полный) 94000 руб
Смета на строительство 47000 руб
Теплотехнический расчет материалов стен Бесплатно
Стоимость проекта со незначительнми изменениями 70300 руб
Стоимость проекта со средними изменениями* 84400 руб
Стоимость проекта со значительными изменениями** 88200 руб

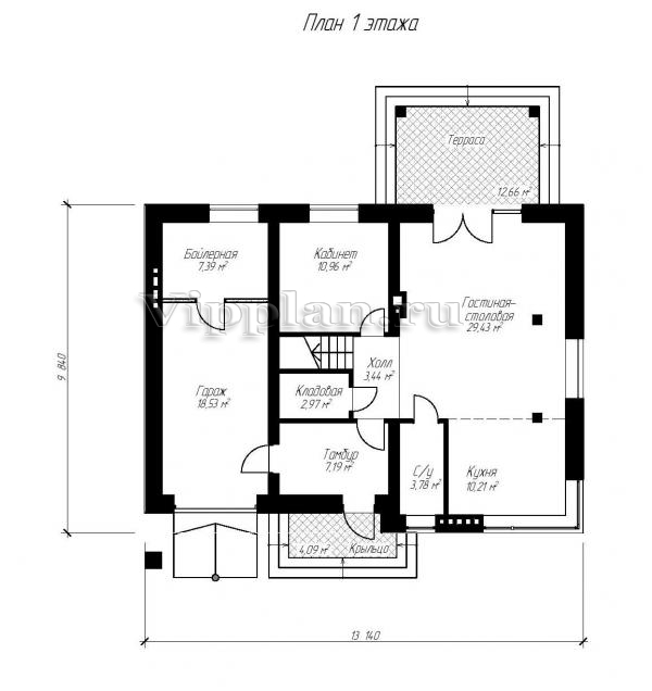
План первого этажа


Терраса - 12,66 м2
Бойлерная - 7,39 м2
Кабинет - 10,96 м2
Кухня - 10,21 м2
Гостиная-столовая - 29,43 м2
С/у - 3,78 м2
Холл - 3,44 м2
Кладовая - 2,97 м2
Тамбур - 7,19 м2
Гараж - 18,53 м2
Крыльцо - 4,09 м2

Проект двухэтажного жилого дома с гаражом «А»

Проект двухэтажного жилого дома с гаражом «А»

План второго этажа


Балкон 1 - 12,66 м2
Балкон 2 - 11,84 м2
Спальня - 21,92 м2
Спальня - 22,56 м2
Спальня - 18,81 м2
Холл - 6,05 м2
Гардероб - 5,35 м2
Ванная 1 - 6,58 м2
Ванная 2 - 5,82 м2
Проект двухэтажного жилого дома с гаражом «А» Проект двухэтажного жилого дома с гаражом «А» Проект двухэтажного жилого дома с гаражом «А» Проект двухэтажного жилого дома с гаражом «А»

Модификации проектов

Внесение изменений и привязка к участку строительства

В любой из проектов от компании VIPplan - Новошахтинск по вашему желанию могут быть внесены изменения в материалы стен, материалы наружной отделки дома, а также будет произведена адаптация проекта под конкретный регион строительства (с учетом грунтов региона, геологических особенностей вашего участка и местных климатических условий) - БЕСПЛАТНО !!! (кроме проектов со скидкой и проектов наших партнеров).

Любой из проектов, размещенных на сайте novoshahtinsk.vipplan.ru мы можем выполнить из требуемых вам строительных материалов: ячеистый бетон (газобетон, пеноблок), керамоблок, кирпич, шлакоблок, бетонный блок, дерево (брус, клееный брус), каркасная технология (деревянный каркас, металлокаркас (ЛСТК)).

Фасад дома и его наружную отделку так же возможно выполнить с применением различных облицовочных материалов: структурной штукатурки, (с утеплителем и без), сайдингом (пластиковый или металлосайдинг), фиброплитами, кирпича.

 
6 Избранные
проекты

Доставка проектов по России: Москва (Московская область), Санкт-Петербург (Ленинградская область), Краснодар, Ростов-на-Дону, Ставрополь, Сочи, Волгоград, Новосибирск, Белгород, Брянск, Воронеж, Саратов, Хабаровск, Астрахань, Нальчик, Владикавказ, Екатеринбург, Тюмень, Самара, Нижний Новгород, Казань, Пермь, Уфа, Челябинск, Красноярск, Ханты-Мансийск, Иркутск, Курган, Оренбург, Омск, Томск, Барнаул, Новокузнецк, Кемерово, Абакан, Чита, Якутск, Южно-Сахалинск, Петропавловск-Камчатский и страны ближнего зарубежья: Белоруссия, Украина, Казахстан