Добро пожаловать на http://vipplan.ru

Випплан Новошахтинск - это тысячи проектов домов в нашем каталоге!

Вы всегда сможете найти для себя проект дома вашей мечты! Даже если этого не случилось, мы готовы в любую минуту предложить проект индивидуального дома.

Забыли пароль?
Вы еще не регистрировались?

Перейдите по ссылке ниже на страницу регистрации.

Регистрация...

Внимание!!!

В проектную документацию могут быть внесены изменения любой сложности, в соответствии в Вашими пожеланиями!

Полезные статьи

Применение свайных фундаментов

Сваи представляют собой длинные стержни, погруженные глубоко в грунт или изготовленные непосредственно в грунте. Покупные сваи с одной стороны имеют заостренный конец, который забивается в почву с помощью специальной техники. Установка свай, изготовленных своими руками, предполагают бурение скважин, армирование и заливку бетонного раствора. ...

Мероприятия по получению разрешения на строительство в Новошахтинске

Хотите построить дом в Новошахтинске? Не знаете с чего начать? Для начала, нужно заказать проект, а после получить разрешение на строительство. ...

Проекты домов и коттеджей > Каталог проектов домов > Одноэтажный дом с мансардой и гаражом Vg2252

Одноэтажный дом с мансардой и гаражом Vg2252

Одноэтажный дом с мансардой и гаражом
Зарегистрируйтесь

Проект № Vg2252


Техническое описание
Общая площадь: 331.58 м2
Жилая площадь: 156.08 м2
Высота здания: 9.22 м
Размеры дома: 14.34м×20.34м
Кол-во комнат: 7
Цокольный этаж: нет
Гараж: нет
Мансарда: есть

Kонструкция
Фундамент: Ленточный монолитный ж/б
Перекрытия: Ж/б монолитное
Материал стен: Газобетон

Архитектурный раздел
Конструктивный раздел
АР+КР - 84 000 (Со скидкой 20%)
Проект индивидуального одноэтажного жилого дома с мансардой с размерами здания 14,34x20,34 м. Наружная отделка здания комбинированная - фасадная штукатурка, клинкерная плитка, руст на углах здания и колонне. Фундамент – ленточный монолитный ж/б. Наружные стены – газобетонные блоки с утеплением- минеральной ватой и отделкой фасадной штукатуркой и клинкерной плиткой. Внутренние стены - газобетонные блоки. Перегородки - газобетонные блоки. Пол 1 этажа - пол по грунту. Межэтажное перекрытие - ж/б монолитное. Крыша многоскатная. Кровля –битумная черепица. Лестница- металлическая, по индивидуальному заказу. Окна – металлопластиковые.
Генплан застройки участка / Паспорт проекта 7000 руб / 10000 руб
Инженерный раздел (полный) 166000 руб
Смета на строительство 83000 руб
Теплотехнический расчет материалов стен Бесплатно
Стоимость проекта со незначительнми изменениями 96700 руб
Стоимость проекта со средними изменениями* 121600 руб
Стоимость проекта со значительными изменениями** 128200 руб

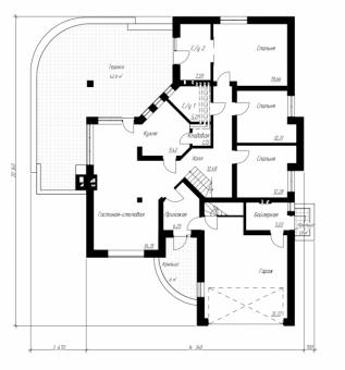
План первого этажа


Прихожая — 6,25 кв м
Гостиная-столовая — 34,35 кв м
Холл — 12,48 кв м
Кухня — 9,42 кв м
С/у — 5,21 кв м
С/у — 7,59 кв м
Спальня — 19,66 кв м
Спальня — 12,31 кв м
Спальня — 12,28 кв м
Бойлерная — 5,03 кв м
Гараж — 33,37 кв м

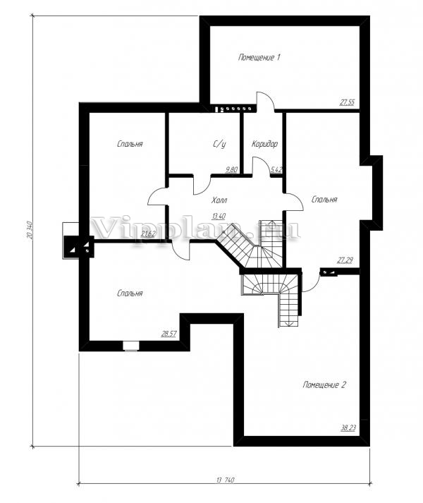
План мансардного этажа


Холл — 13,40 кв м
Спальня — 28,57 кв м
Спальня — 21,62 кв м
С/у — 9,8 кв м
Помещение1 — 27,55 кв м
Коридор — 5,42 кв м
Спальня — 27,29 кв м
Помещение2 — 38,23 кв м
Одноэтажный дом с мансардой и гаражом Одноэтажный дом с мансардой и гаражом Одноэтажный дом с мансардой и гаражом Одноэтажный дом с мансардой и гаражом

Модификации проектов

Внесение изменений и привязка к участку строительства

В любой из проектов от компании VIPplan - Новошахтинск по вашему желанию могут быть внесены изменения в материалы стен, материалы наружной отделки дома, а также будет произведена адаптация проекта под конкретный регион строительства (с учетом грунтов региона, геологических особенностей вашего участка и местных климатических условий) - БЕСПЛАТНО !!! (кроме проектов со скидкой и проектов наших партнеров).

Любой из проектов, размещенных на сайте novoshahtinsk.vipplan.ru мы можем выполнить из требуемых вам строительных материалов: ячеистый бетон (газобетон, пеноблок), керамоблок, кирпич, шлакоблок, бетонный блок, дерево (брус, клееный брус), каркасная технология (деревянный каркас, металлокаркас (ЛСТК)).

Фасад дома и его наружную отделку так же возможно выполнить с применением различных облицовочных материалов: структурной штукатурки, (с утеплителем и без), сайдингом (пластиковый или металлосайдинг), фиброплитами, кирпича.

 
6 Избранные
проекты

Доставка проектов по России: Москва (Московская область), Санкт-Петербург (Ленинградская область), Краснодар, Ростов-на-Дону, Ставрополь, Сочи, Волгоград, Новосибирск, Белгород, Брянск, Воронеж, Саратов, Хабаровск, Астрахань, Нальчик, Владикавказ, Екатеринбург, Тюмень, Самара, Нижний Новгород, Казань, Пермь, Уфа, Челябинск, Красноярск, Ханты-Мансийск, Иркутск, Курган, Оренбург, Омск, Томск, Барнаул, Новокузнецк, Кемерово, Абакан, Чита, Якутск, Южно-Сахалинск, Петропавловск-Камчатский и страны ближнего зарубежья: Белоруссия, Украина, Казахстан