Добро пожаловать на http://vipplan.ru

Випплан Новошахтинск - это тысячи проектов домов в нашем каталоге!

Вы всегда сможете найти для себя проект дома вашей мечты! Даже если этого не случилось, мы готовы в любую минуту предложить проект индивидуального дома.

Забыли пароль?
Вы еще не регистрировались?

Перейдите по ссылке ниже на страницу регистрации.

Регистрация...

Внимание!!!

В проектную документацию могут быть внесены изменения любой сложности, в соответствии в Вашими пожеланиями!

Полезные статьи

Закладка фундамента дома

Закладка фундамента является одним из первых и самых главных этапов строительства любого дома. Все здание опирается именно на эту часть конструкции. Поэтому главная функция фундамента заключается в том, чтобы нести на себе весь вес несущих стен и кровли, а значит предотвращать появление перекоса стен, проседание сооружения, что неизбежно приводит к образованию трещин в стенах здания и в фундаменте....

Зачем нужен проект дома?

Зачем нужен проект? - спросите вы. Проект дома является важной и неотъемлемой частью при строительстве дома. После покупки проекта, вы получите разрешение на строительство, предоставив его в местную архитектуру, а после, с его помощью, построите дом....

Проекты домов и коттеджей > Каталог проектов домов > Проект уютного коттеджа с подвалом и мансардой Vg1306

Проект уютного коттеджа с подвалом и мансардой Vg1306

Проект уютного коттеджа с подвалом и мансардой
Зарегистрируйтесь

Проект № Vg1306


Техническое описание
Общая площадь: 248.92 м2
Жилая площадь: 106.25 м2
Высота здания: 9.37 м
Размеры дома: 16.24м×11.3м
Кол-во комнат: 6
Цокольный этаж: есть
Гараж: нет
Мансарда: есть

Kонструкция
Фундамент: Ленточный
Перекрытия: Монолитные перекрытия
Материал стен: Газобетон

Архитектурный раздел
Конструктивный раздел
АР+КР - 64 000 (Со скидкой 20%)
Проект индивидуального одноэтажного жилого дома с размерами здания 16,24 x 11,30м. Стены - облицовочный кирпич. Цоколь - отделка камнем. Кровля - металлочерепица. Отделка вентканалов и дымоходов - облицовочный кирпич. Фундамент - ленточный монолитный ж/б. Наружные стены дома: Газобетонные блоки, экструдированный пенополистирол, вент.зазор, облицовочный кирпич. Внутренние стены: - газобетонные блоки. - кирпич. Перегородки: - газобетонные блоки. Пол первого этажа - ж/б монолитное перекрытие. Пол мансардного этажа - ж/б монолитное перекрытие. Потолок мансардного этажа - по затяжкам стропильной системы. Крыша многоскатная. Перемычки - монолитные и сварные из профиля проката. Окна - металлопластиковые, выполненные по индивидуальному заказу. Лестница - металлическая, выполняется по индивидуальному заказу.
Генплан застройки участка / Паспорт проекта 7000 руб / 10000 руб
Инженерный раздел (полный) 124500 руб
Смета на строительство 62250 руб
Теплотехнический расчет материалов стен Бесплатно
Стоимость проекта со незначительнми изменениями 73750 руб
Стоимость проекта со средними изменениями* 92500 руб
Стоимость проекта со значительными изменениями** 97400 руб

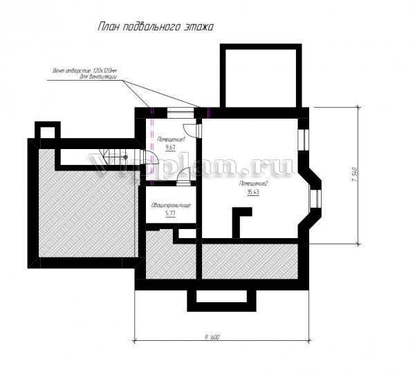
План цокольного этажа


Помещение 1 — 9,67 м2
Помещение 2 — 35,43 м2
Овощехранилище — 5,77 м2

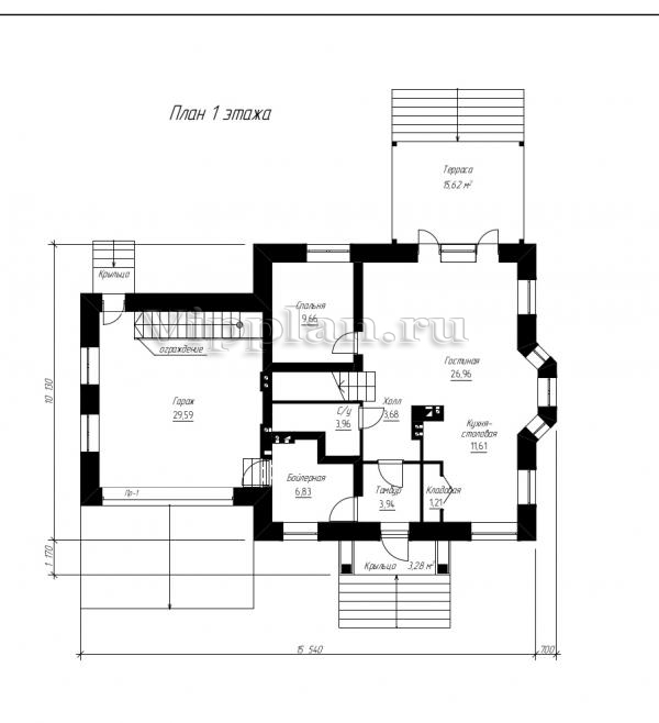
План первого этажа


Тамбур — 3,94 м2
Холл — 3,68 м2
Гостиная — 26,96 м2
Кухня — 11,61 м2
С/у — 3,96 м2
Спальня — 9,66 м2
Бойлерная — 6,83 м2
Кладовая — 1,21 м2
Гараж — 29,59 м2

План мансардного этажа


Холл — 4,62 м2
Спальня — 17,44 м2
Спальня — 18,36 м2
Спальня — 15,55 м2
Ванная — 10,47 м2
Комната — 18,28 м2
Сауна — 4,23 м2
С/у — 6,13 м2
Гардероб — 3,75 м2
Проект уютного коттеджа с подвалом и мансардой Проект уютного коттеджа с подвалом и мансардой Проект уютного коттеджа с подвалом и мансардой Проект уютного коттеджа с подвалом и мансардой

Модификации проектов

Внесение изменений и привязка к участку строительства

В любой из проектов от компании VIPplan - Новошахтинск по вашему желанию могут быть внесены изменения в материалы стен, материалы наружной отделки дома, а также будет произведена адаптация проекта под конкретный регион строительства (с учетом грунтов региона, геологических особенностей вашего участка и местных климатических условий) - БЕСПЛАТНО !!! (кроме проектов со скидкой и проектов наших партнеров).

Любой из проектов, размещенных на сайте novoshahtinsk.vipplan.ru мы можем выполнить из требуемых вам строительных материалов: ячеистый бетон (газобетон, пеноблок), керамоблок, кирпич, шлакоблок, бетонный блок, дерево (брус, клееный брус), каркасная технология (деревянный каркас, металлокаркас (ЛСТК)).

Фасад дома и его наружную отделку так же возможно выполнить с применением различных облицовочных материалов: структурной штукатурки, (с утеплителем и без), сайдингом (пластиковый или металлосайдинг), фиброплитами, кирпича.

 
6 Избранные
проекты

Доставка проектов по России: Москва (Московская область), Санкт-Петербург (Ленинградская область), Краснодар, Ростов-на-Дону, Ставрополь, Сочи, Волгоград, Новосибирск, Белгород, Брянск, Воронеж, Саратов, Хабаровск, Астрахань, Нальчик, Владикавказ, Екатеринбург, Тюмень, Самара, Нижний Новгород, Казань, Пермь, Уфа, Челябинск, Красноярск, Ханты-Мансийск, Иркутск, Курган, Оренбург, Омск, Томск, Барнаул, Новокузнецк, Кемерово, Абакан, Чита, Якутск, Южно-Сахалинск, Петропавловск-Камчатский и страны ближнего зарубежья: Белоруссия, Украина, Казахстан