Добро пожаловать на http://vipplan.ru

Випплан Новошахтинск - это тысячи проектов домов в нашем каталоге!

Вы всегда сможете найти для себя проект дома вашей мечты! Даже если этого не случилось, мы готовы в любую минуту предложить проект индивидуального дома.

Забыли пароль?
Вы еще не регистрировались?

Перейдите по ссылке ниже на страницу регистрации.

Регистрация...

Внимание!!!

В проектную документацию могут быть внесены изменения любой сложности, в соответствии в Вашими пожеланиями!

Полезные статьи

Выбор проекта дома (площадь, этажность - 1 или 2 этажа)

Для того что бы выбрать проект дома, предварительно необходимо определиться, какой будет площадь будущего дома (решение зависит от количества человек, планирующих постоянно в нем проживать), количество спален, санузлов и ванных комнат, компоновка дома, одноэтажный, масардный или двухэтажный дом (зависит от площади участка и предпочтений будущих хозяев) ...

Типы и разновидности кровли

Кровля состоит из сплошного настила, стяжки и обрешетки, поддерживающих стропила и несколько слоев изоляции, призванных уберечь кровельное пространство от негативного воздействия пара и влаги....

Проекты домов и коттеджей > Каталог проектов домов > Проект индивидуального одноэтажного жилого дома с мансардой в русском стиле Vg2380

Проект индивидуального одноэтажного жилого дома с мансардой в русском стиле Vg2380

Проект индивидуального одноэтажного жилого дома с мансардой в русском стиле
Зарегистрируйтесь

Проект № Vg2380


Техническое описание
Общая площадь: 226.89 м2
Жилая площадь: 128.07 м2
Высота здания: 9.84 м
Размеры дома: 9.99м×16.86м
Кол-во комнат: 6
Цокольный этаж: нет
Гараж: нет
Мансарда: есть

Kонструкция
Фундамент: ленточный монолитный ж/б под несущими стенами
Перекрытия: деревянные балки
Материал стен: Дерево

Архитектурный раздел
АР+КР - 64 000 (Со скидкой 20%)
Модель проекта индивидуального одноэтажного жилого дома с мансардой в русском стиле с размерами здания 9,99 x 16,86 м. Фундамент - ленточный монолитный ж/б под несущими стенами. Наружные и внутренние стены - оцилиндрованное бревно. Перегородки - каркасные деревнные. Перекрытия - деревянные балки. Крыша многоскатная. Кровля – дранка. Окна — деревянные.
Генплан застройки участка / Паспорт проекта 7000 руб / 10000 руб
Инженерный раздел (полный) 113500 руб
Смета на строительство 56750 руб
Теплотехнический расчет материалов стен Бесплатно
Стоимость проекта со незначительнми изменениями 74300 руб
Стоимость проекта со средними изменениями* 91400 руб
Стоимость проекта со значительными изменениями** 95900 руб

План первого этажа


Тамбур — 5,05 м2
Холл — 4,65 м2
Гостиная — 32,34 м2
Кухня — 11,47 м2
Кабинет — 11,16 м2
С/у — 4,22 м2
Бойлерная — 7,36 м2
Кладовая — 1,44 м2
Гараж — 36,95 м2

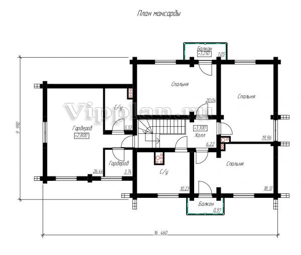
План мансардного этажа


Холл — 6,22 м2
Спальня — 20,04 м2
Спальня — 19,96 м2
Спальня — 18,13 м2
С/у — 10,23 м2
Гардероб — 26,44 м2
С/у — 5,53 м2
Гардероб — 3,74 м2
Проект индивидуального одноэтажного жилого дома с мансардой в русском стиле Проект индивидуального одноэтажного жилого дома с мансардой в русском стиле Проект индивидуального одноэтажного жилого дома с мансардой в русском стиле Проект индивидуального одноэтажного жилого дома с мансардой в русском стиле

Модификации проектов

Внесение изменений и привязка к участку строительства

В любой из проектов от компании VIPplan - Новошахтинск по вашему желанию могут быть внесены изменения в материалы стен, материалы наружной отделки дома, а также будет произведена адаптация проекта под конкретный регион строительства (с учетом грунтов региона, геологических особенностей вашего участка и местных климатических условий) - БЕСПЛАТНО !!! (кроме проектов со скидкой и проектов наших партнеров).

Любой из проектов, размещенных на сайте novoshahtinsk.vipplan.ru мы можем выполнить из требуемых вам строительных материалов: ячеистый бетон (газобетон, пеноблок), керамоблок, кирпич, шлакоблок, бетонный блок, дерево (брус, клееный брус), каркасная технология (деревянный каркас, металлокаркас (ЛСТК)).

Фасад дома и его наружную отделку так же возможно выполнить с применением различных облицовочных материалов: структурной штукатурки, (с утеплителем и без), сайдингом (пластиковый или металлосайдинг), фиброплитами, кирпича.

 
6 Избранные
проекты

Доставка проектов по России: Москва (Московская область), Санкт-Петербург (Ленинградская область), Краснодар, Ростов-на-Дону, Ставрополь, Сочи, Волгоград, Новосибирск, Белгород, Брянск, Воронеж, Саратов, Хабаровск, Астрахань, Нальчик, Владикавказ, Екатеринбург, Тюмень, Самара, Нижний Новгород, Казань, Пермь, Уфа, Челябинск, Красноярск, Ханты-Мансийск, Иркутск, Курган, Оренбург, Омск, Томск, Барнаул, Новокузнецк, Кемерово, Абакан, Чита, Якутск, Южно-Сахалинск, Петропавловск-Камчатский и страны ближнего зарубежья: Белоруссия, Украина, Казахстан